Nieuwe Prinsengracht

1018 VR Amsterdam - Weesperbuurt

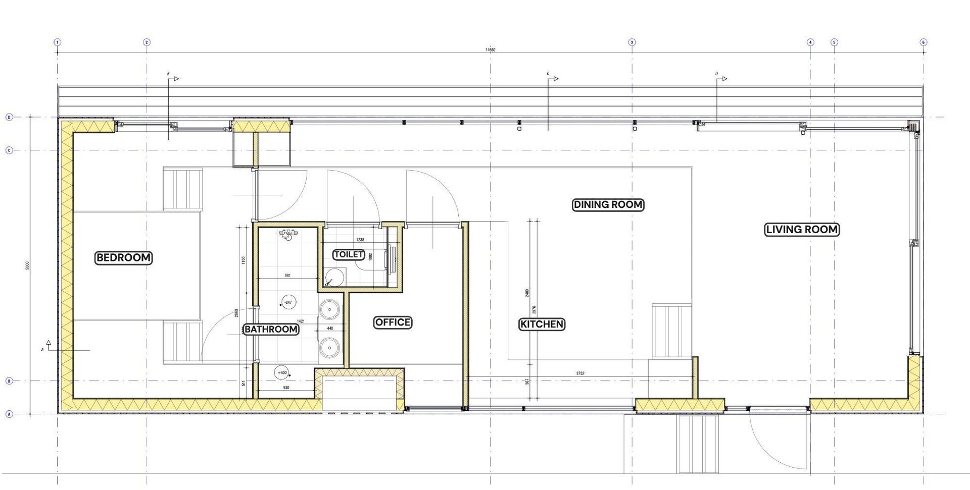
Experience refined waterfront living in this stunning newly built houseboat by the architect Bob Ronday, featuring a sophisticated Japanese-Scandinavian design aesthetic. This 75m² waterfront residence combines minimalist elegance with premium functionality, offering a serene retreat in the heart of Amsterdam.
Property Highlights:

Master bedroom with water views
Additional small room ideal as study, nursery, or storage
Panoramic windows throughout, flooding the space with natural light
Spacious, fully-equipped kitchen
Separate toilet
Sliding doors on all sides, seamlessly connecting indoor and outdoor living
Floor heating and cooling system throughout
Authentic Amsterdam canal location with direct water access

Fully Equipped & Turn-Key:

Washer-dryer combination
Refrigerator-freezer combination
Microwave oven
Smart TV and Sonos speaker
Premium finishes and fixtures

Prime Central Location: Situated in Amsterdam's vibrant center with everything at your doorstep: theaters, cinemas, supermarkets, and an abundance of breakfast, lunch, and dinner venues. The perfect balance of tranquil waterside living and urban convenience.Rental Terms:

Preferred duration: 3-6 months
Rental price: €4,250 per month (including TV, internet, and furnishings; excluding water and electricity)

Ideal for professionals or expats seeking an exceptional, design-focused living experience in Amsterdam's most desirable location.

Kenmerken

Huurprijs
€ 4.250 p.m. ex.
Inrichting
Gemeubileerd
Status
Beschikbaar
Oplevering
01-02-2026
Wijk
Weesperbuurt

Bouw

Woonhuis
Woonboot
Bouwjaar
2025

Oppervlakten en inhoud

Oppervlakte
75m²

Indeling

Kamers
3
Slaapkamers
2
Badkamers
1
Verdiepingen
1

Locatie

Bereken route
[ { "address": "Nieuwe Prinsengracht 81", "zipCode": "1018 VR", "city": "Amsterdam", "lat": 52.3639216, "lng": 4.9074856, "heading": 0, "pitch": 0 } ]

Interesse? Plan een bezichtiging

Geef hier uw voorkeursdata en tijd aan of stel uw vraag.

Uw bericht is naar ons verzonden. Wij nemen zo snel mogelijk contact met u op.

Er is iets mis gegaan met het versturen van het formulier.
Controleer of u alle velden (goed) heeft ingevoerd en probeer het nog een keer.

Wilt u een bezichtiging plannen?

Hoeveel is ?  


Heeft u een vraag?

Wij zijn altijd bereikbaar op

003120-3791187